Pergola Sebru

39700 kr

Pris (med MVA): 39700 kr

Beskrivelse

caret-down
  • Skreddersydd og tilpasninger mulig.

Inkludert i pakken

caret-down
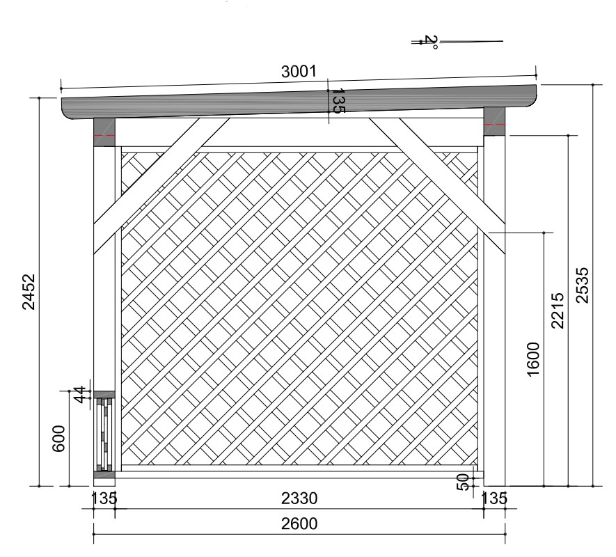
  • Limtre konstruksjon (70 % sterkere enn heltre):
  • Stolper 135x135mm;
  • Bjelker 135x180mm;
  • Taksperrer 58x140mm;
  • Takbord 19x100 mm;
  • Levegg 19x40 mm bord;
  • Monteringsanvisning;
  • Takpapp/takshingel og stolpesko ikke inkludert.

Tekniske opplysninger

caret-down
Veggtykkelse (mm):
135mm limtre ramme
Bygningsarea(m²)l:
10.66
Takformen:
Pulttak
Innvendige mål (m):
4.10 x 2.33
Utvendige mål (m):
4.10 x 2.60
Bygningsareal(m²):
10.66
Takareal (m²):
13.50
Laveste vegghøyde (m):
2.22
Mønehøyde (m):
2.54
Innkjørsel bredde (m):
5.27
Innkjørsel høyde (m):
2.20
Få flere opplysninger
Ved å sende denne meldingen vil du motta et tilbud på produktet: Pergola Sebru

Pergola Sebru

39700 kr