Prosjekt 52

455000 kr

Pris (med MVA): 455000 kr

Beskrivelse

caret-down
  • Høyde på bjelkene 260 mm (laminert i tykkelse og høyde) som gir en mer solid struktur.
  • Skreddersydd og tilpasninger mulig.
  • Tykkere vegg 135mm,180mm, 220mm mulig.
  • Vegg,tak og gulv isolasjon mulig.

Inkludert i pakken

caret-down
  • Gulv - høytrikk impregnerte grunnbjelker,gulvåser. Gulvbord 28 mm,gulvlister. Klargjørt for isolasjon;
  • Som fundament til terrassen (hvis en terrasse er planlagt) kommer høytrikkimpregnert bjelkelag.Terrasebord også høyttrykkimpregnerte;
  • Bjelker til andre etasje,himlingspanel for første etasje,lekter(hvis andre etasje er planlagt)
  • Trapp til andre etasje eller hems(hvis planlagt i prosjekt)
  • Vegg og mellommvegg i limtre med laftehjørnet eller city hjørnet.Treramme mellomveg også mulig.
  • Tak - bjelker, takstoler, taksperrer, lekter, kantbord, not og fjær takbord,himlingspanel. Tak klartgjørt for isolasjon og takbelegg;
  • Limtre vinduer og dører med isolerglass. Dekorativ treramme innvendig og utvendig;
  • Innvendige dører i limt treverk med eller uten glass. Dekorativ treramme innvendig og utvendig;
  • Vertikale støtter og støttemekanismer hvis beskrevet av prosjektspesifikasjonene;
  • Dekorativ fresing av sperreender, kolonner, rekkverk og andre synlige detaljer (design etter avtale);
  • Industriell klargjøring av ledningskanaler, plasseringer til stikkontakter og brytere.
  • Monteringsinstruks, teknisk dokumentasjon, detaljerte tegninger.

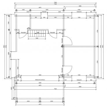
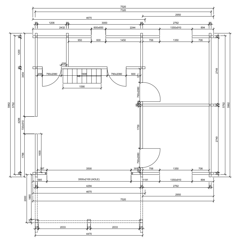
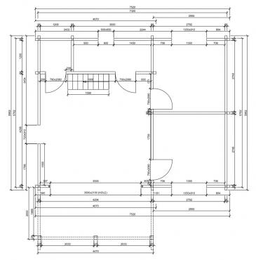
Tekniske opplysninger

caret-down
Veggtykkelse (mm):
90mm
Bruksareal (m²):
52
Antall etasjer:
2
Antall rom:
Mer enn tre
Bygningsareal(m²):
51,12
Terrasse (m²):
8,94
Tilleggssett
caret-down
  • Fabrikkmaling og lakkering av vinduer og dører mot tillegg.
  • Det kan også bestilles  fundament, montering, isolering, takbelegg og maling.
  • Vegg isolering mulig på utsiden eller innsiden (treramme fylt med steinull  eller ecowool, kledning med planker som imiterer tømmerstokker eller med andre typer materialer).
Ytterligere muligheter
Montering
Mulig å bestille montering, samt utførelse av annet tilleggsarbeid i henhold til avtale (fundament, isolering, maling mm.)
Individuelle prosjekter
Vi produserer også skreddersydde prosjekter etter deres skisser, tegninger, ideer!
Få flere opplysninger
Ved å sende denne meldingen vil du motta et tilbud på produktet: Prosjekt 52

Prosjekt 52

455000 kr