Jurkalne

130700 kr

Pris (med MVA): 130700 kr

Beskrivelse

caret-down
  • Skreddersydd og tilpasninger mulig.
  • Tykkere vegg (68 mm, 90 mm, 135 mm, etc.) mulig.
  • Vegg,tak og gulv isolasjonssett tilgjengelig mot pristillegg.

Inkludert i pakken

caret-down
  • Vegg 44mm;
  • 19 mm not og fjær tak,kantbord;
  • 19 mm not og fjær gulvbord,gulvlister;
  • Isolerglass vinduer og dører i treramme ;
  • Toveis åpningsbare vinduer med utvendig vinduskarm i metall;
  • Impregnerte grunnbjelker;
  • 28 mm terrasse med rekkverk;
  • Vinduer og dører med komplett beslagg sett;
  • Monteringsanvisning.

Tekniske opplysninger

caret-down
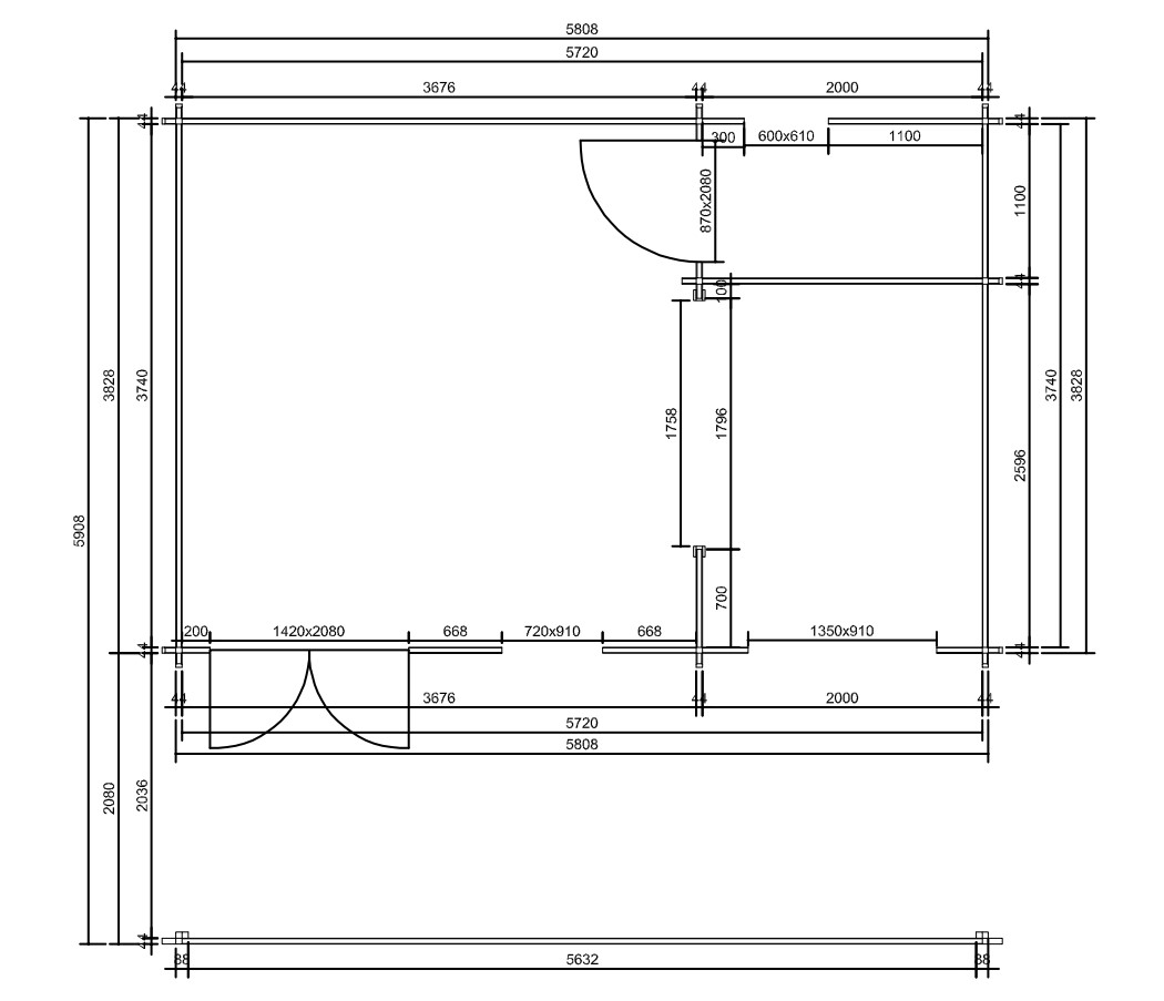
Veggtykkelse (mm):
44mm
Bruksareal (m²):
21.14
Antall etasjer:
1
Takformen:
Saltak
Antall rom:
Tre
Innvendige mål (m):
5.72 x 3.74
Utvendige mål (m):
5.908 x 5.808
Bygningsareal(m²):
34.31
Takareal (m²):
40.21
Tak overheng foran (m):
2.08
Laveste vegghøyde (m):
2.21
Mønehøyde (m):
2.86
Antall vinduer (stk.):
2 / 1
Vindusstørrelsen (m):
1.40 x 1.25 / 0.6 x 0.61
Ytterdør størrelse (m):
1.42 x 2.08
Innerdør størrelse (m):
0.87 x 2.08
Ytterligere muligheter
Montering
Mulig å bestille montering, samt utførelse av annet tilleggsarbeid i henhold til avtale (fundament, isolering, maling mm.)
Individuelle prosjekter
Vi produserer også skreddersydde prosjekter etter deres skisser, tegninger, ideer!
Få flere opplysninger
Ved å sende denne meldingen vil du motta et tilbud på produktet: Jurkalne

Jurkalne

130700 kr