Hansa living 57

245000 kr

Pris (med MVA): 245000 kr

Beskrivelse

caret-down
  • Skreddersydd og tilpasninger mulig.
  • Tykkere vegg (68 mm, 90 mm, 135 mm, etc.) mulig.
  • Vegg,tak og gulv isolasjonssett tilgjengelig mot pristillegg.

Inkludert i pakken

caret-down
  • Vegg 44mm;
  • 19 mm not og fjær tak,kantbord;
  • 19 mm not og fjær gulvbord,gulvlister;
  • Isolerglass vinduer og dører i treramme ;
  • Toveis åpningsbare vinduer med utvendig vinduskarm i metall;
  • Impregnerte grunnbjelker;
  • Avtakbar stige;
  • Vinduer og dører med komplett beslagg sett;
  • Monteringsanvisning.

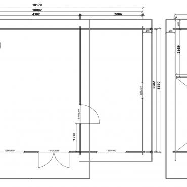
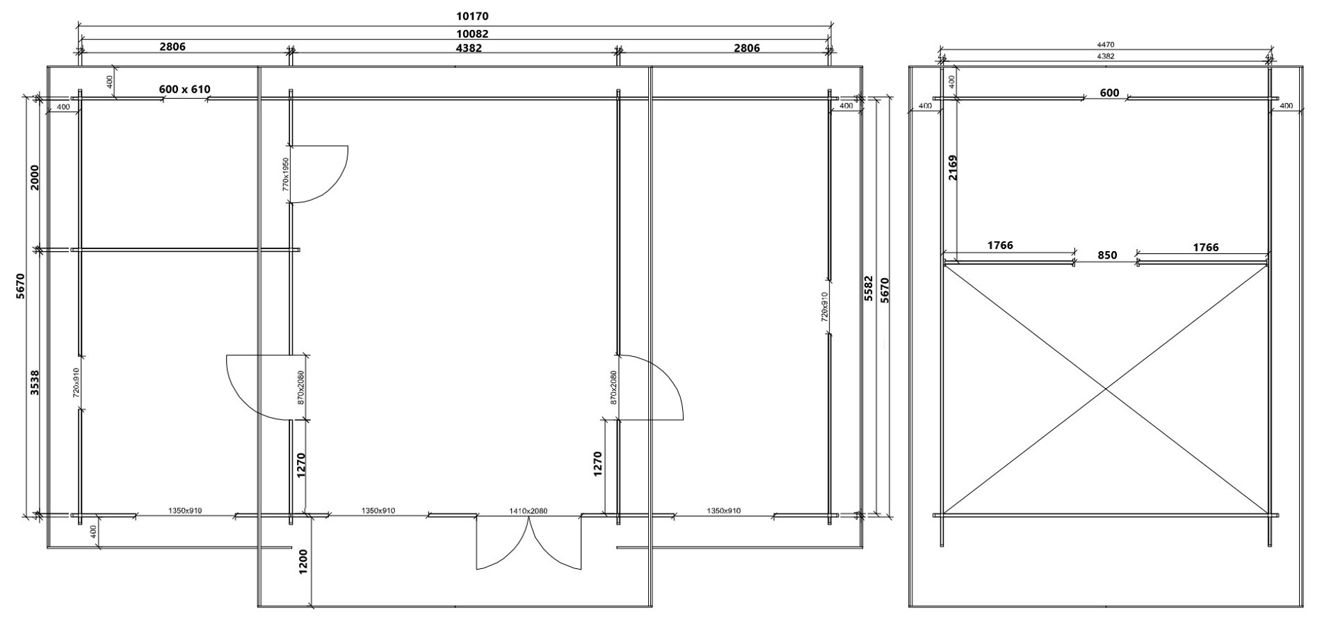
Tekniske opplysninger

caret-down
Veggtykkelse (mm):
44mm
Bruksareal (m²):
55.67
Antall etasjer:
1.5
Takformen:
Saltak
Antall rom:
Mer enn tre
Innvendige mål (m):
10.082 x 5.582 + hems 4.382 x 2.17
Utvendige mål (m):
10.17 x 5.67
Bygningsareal(m²):
57.66
Takareal (m²):
83.20
Tak overheng foran (m):
1.20
Laveste vegghøyde (m):
2.14
Mønehøyde (m):
3.96
Antall vinduer (stk.):
3 / 2 / 2
Vindusstørrelsen (m):
1.35 x 0.91 / 0.72 x 0.91 / 0.60 x 0.61
Ytterdør størrelse (m):
1.41 x 2.08
Innerdør størrelse (m):
0.87 x 2.08
Ytterligere muligheter
Montering
Mulig å bestille montering, samt utførelse av annet tilleggsarbeid i henhold til avtale (fundament, isolering, maling mm.)
Individuelle prosjekter
Vi produserer også skreddersydde prosjekter etter deres skisser, tegninger, ideer!
Få flere opplysninger
Ved å sende denne meldingen vil du motta et tilbud på produktet: Hansa living 57

Hansa living 57

245000 kr