Granviller

117700 kr

Pris (med MVA): 117700 kr

Beskrivelse

caret-down
  • Skreddersydd og tilpasninger mulig.
  • Tykkere vegg (68 mm, 90 mm, 135 mm, etc.) mulig.

Inkludert i pakken

caret-down
  • Vegg 44 mm;
  • Impregnerte grunnbjelker langs perimeter;
  • Takbord 19 mm not og fjær;
  • Toveis åpningsbare isolerglass vinduer med utvendig vinduskarm i metall;
  • Limtre port ;
  • Vinduer og dører med komplett beslagg sett;
  • Monteringsanvisning.

Tekniske opplysninger

caret-down
Veggtykkelse (mm):
44mm
Bruksareal (m²):
19.17
Bygningsarea(m²)l:
41.55
Takformen:
Saltak
Antall rom:
Et
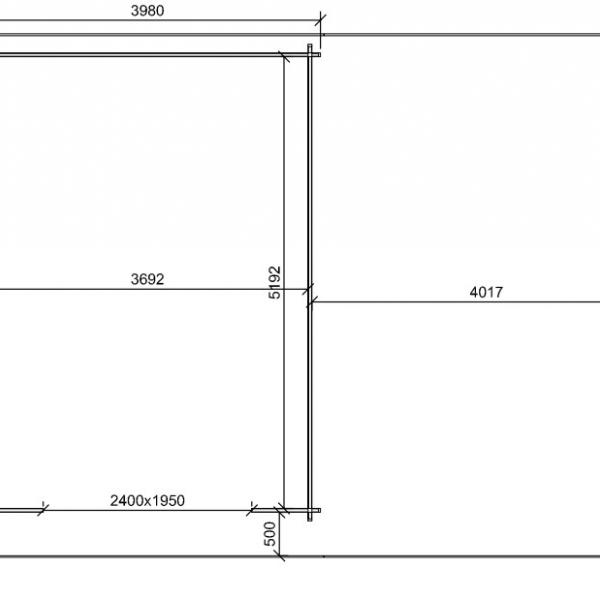
Innvendige mål (m):
3.692 x 5.192 + 4.017 x 5.192
Utvendige mål (m):
5.28 x 7.87
Bygningsareal(m²):
41.53
Takareal (m²):
51.60
Tak overheng foran (m):
0.50
Laveste vegghøyde (m):
2.275
Mønehøyde (m):
3.315
Antall vinduer (stk.):
1
Vindusstørrelsen (m):
1.35 x 0.91
Ytterdør størrelse (m):
Døra 0.87 x 1.95 Port 2.40 x 1.95
Innkjørsel bredde (m):
2.40
Innkjørsel høyde (m):
1.95

Ytterligere filer

caret-down
Få flere opplysninger
Ved å sende denne meldingen vil du motta et tilbud på produktet: Granviller

Granviller

117700 kr