Gaffa 2

78600 kr

Pris (med MVA): 78600 kr

Tekniske opplysninger

caret-down
Veggtykkelse (mm):
34mm
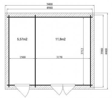
Bruksareal (m²):
17.37
Antall etasjer:
1
Takformen:
Saltak
Husets form:
Firkantet
Antall rom:
To
Med gulv / uten gulv:
Med gulv
Innvendige mål (m):
1.50 x 3.712 / 3.178 x 3.712
Utvendige mål (m):
4.78 x 3.78
Bygningsareal(m²):
18.07
Tak overheng foran (m):
0.30
Laveste vegghøyde (m):
2.33
Mønehøyde (m):
2.70
Ytterdør størrelse (m):
1.42 x 1.95 / 0.87 x 1.95

Inkludert i pakken

caret-down
  • 19 mm tak,kantbord;
  • 19 mm gulvbord,gulvlister;
  • Døra i limtre med eller uten glass;
  • Impregnerte grunnbjelker;
  • Lav metallterskel;
  • Dør med sylinderlås og håndtak;
  • Monteringsanvisning.
Tilleggssett
caret-down
  • Skreddersydd og tilpasninger mulig.
Få flere opplysninger
Ved å sende denne meldingen vil du motta et tilbud på produktet: Gaffa 2

Gaffa 2

78600 kr